カスタリア戸越|ルームプラン

sp
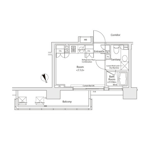
間取図
sp
図面と現況が異なる場合は、現況を優先します。
sp
高級賃貸マンション|株式会社アライバル